Product Description

DESCRIPTION

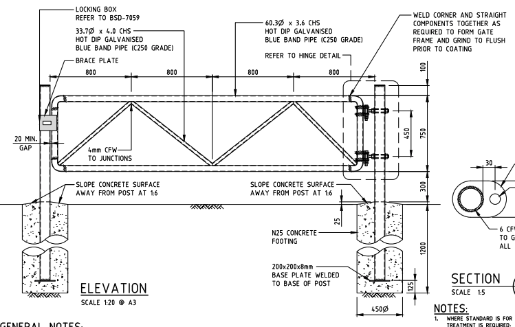
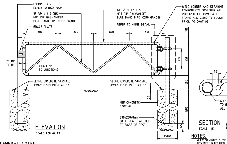
The medium duty vehicle access gate from WALSH offers a complete and ready to install package which fully meets all council specifications and requirements to ensure compliance to BCC Standard Drawing BSD-7057.

  • Price on Application (POA)
  • Discounts available for bulk orders

INCLUDED:

  • Supply Only
  • 1 x medium duty gate leaf to suit 3200mmW x 1150mmH opening
  • 1 x 101.6mm OD hinge post c/w 300mmx300mm base plate
  • 1 x hinge and collar
  • 1 x 101.6mm OD receiver post c/w 300mmx300mm base plate
  • 1 x locking box
  • Hot dip galvanising
  • Powder coating

EXCLUDED:

  • Delivery (pricing available on application
  • Installation